Immobiliare a MonteCarlo

Uffici da affittare a montecarlo

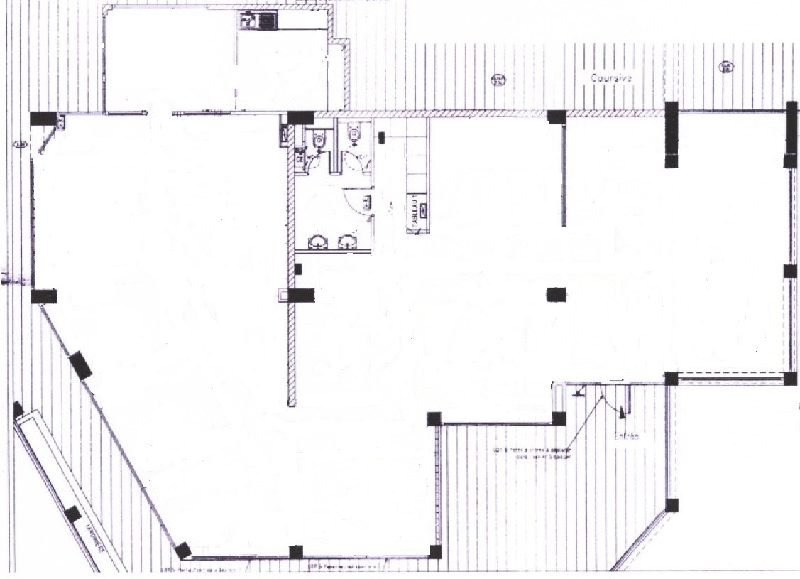
FONTVIEILLE - UFFICIO 290 M² IN AFFITTO

Tornare alla lista

25 000 € (+service charges : 1 900 €)
No. camere : 6
Tipo di proprietà : Ufficio
Città : Monaco
Superficie abitabile : 290 m²
Superficie totale : 290 m²
Livello : RDC
Data di liberazione : Immédiatement
Parcheggi : 2

A Fontvieille splendidi uffici di 290 m²  (parzialmente arredati e attrezzati) affacciati sul mare. Molto luminoso

Gli uffici comprendono: uno spazio aperto, una grande sala riunioni o ufficio esecutivo,  diversi uffici, una sala archiviazione, una sala computer, un corridoio, servizi bagni (per uomini e donne), una cucina completamente attrezzata, un'area relax. 

2 parcheggi completano questa proprietà 

Possibilità di locazione commerciale 

 

 


Posizione del prodotto

Contatto

* campo obbligatorio

Tornare alla lista

FR EN IT