Immobiliare a MonteCarlo

Uffici da affittare a montecarlo

Ufficio con Vetrina – Le Cimabue, Fontvieille

Tornare alla lista

Ufficio con finestra in affitto sul porto di Fontvieille

4 090 € (spese incluse)
No. camere : -
Tipo di proprietà : Ufficio
Città : Monaco
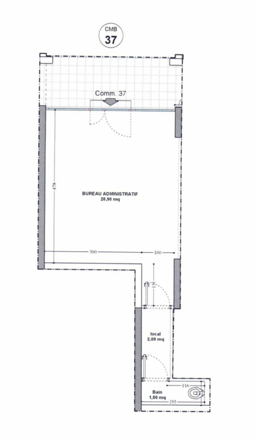
Superficie abitabile : 24 m²
Superficie totale : 24 m²
Livello : RDC
Data di liberazione : 01/10/2025

Il Cimabue - Nella prestigiosa residenza con portineria, questo ufficio di 24 m² al piano terra offre una posizione privilegiata sul porto di Fontvieille. In perfette condizioni, dispone di uno spazio ufficio principaleservizi igienici e una vetrina, garantendo un'ottima visibilità per uso amministrativo o professionale.

Vicino a ristoranti, negozi e servizi, questo ufficio offre comodità e prestigio.


Posizione del prodotto

Contatto

* campo obbligatorio

Tornare alla lista

FR EN IT