Grazioso monolocale arredato in una zona tranquilla con giardino
Piacevole monolocale tranquillo con giardino, che offre uno spazio funzionale e ben organizzato. Una sistemazione semplice e pratica, ideale per godere quotidianamente di un ambiente tranquillo e confortevole.
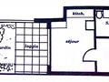
Grazioso monolocale arredato in una zona tranquilla con giardino, che offre un ambiente ben pensato e facile da vivere. La sala principale, luminosa e funzionale, è accompagnata da una pratica zona cucina, perfettamente integrata nello spazio. L'accesso diretto al giardino porta un vero vantaggio, permettendo di godere di un piacevole esterno. Una sistemazione semplice e confortevole, ideale per chi cerca un ambiente tranquillo e pratico per la vita di tutti i giorni.