Les Princes - Offices for rent
"Les Princes", a prestigious building, ideally located in the privileged area of Port Hercule.
Affitto su richiesta
No. camere :
11
Tipo di proprietà :
Ufficio
Città :
Monaco
Superficie abitabile :
566 m²
Superficie totale :
566 m²
Livello :
Rez-de-chaussée
Data di liberazione :
3ème/ 4ème trimestre 2026
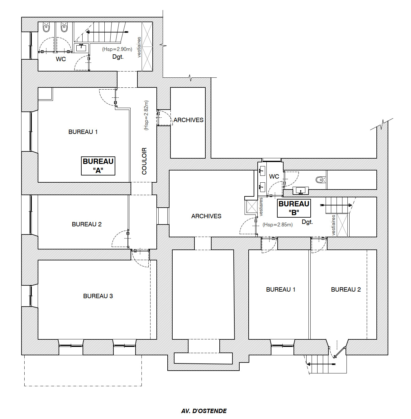
These two premises will be fully renovated by the owner and will offer an exceptional professional environment.
Office A consists, on the ground floor, of a reception area, three offices, and a meeting room. The basement includes two additional offices as well as an archive room.
Office B features, on the ground floor, a reception area and three offices, complemented in the basement by three more offices.