Immobiliare a MonteCarlo

Uffici in vendita a MonteCarlo

Fondo commerciale / Leasing

Tornare alla lista

2 500 000 €
No. camere :
Tipo di proprietà : Commercio
Quartiere : boulevard des moulins
Città : Monaco
Superficie abitabile : 330 m²
Superficie totale : 330 m²
Livello : RDC

Locazione per tutte le aziende. Una rara opportunità in un contesto eccezionale

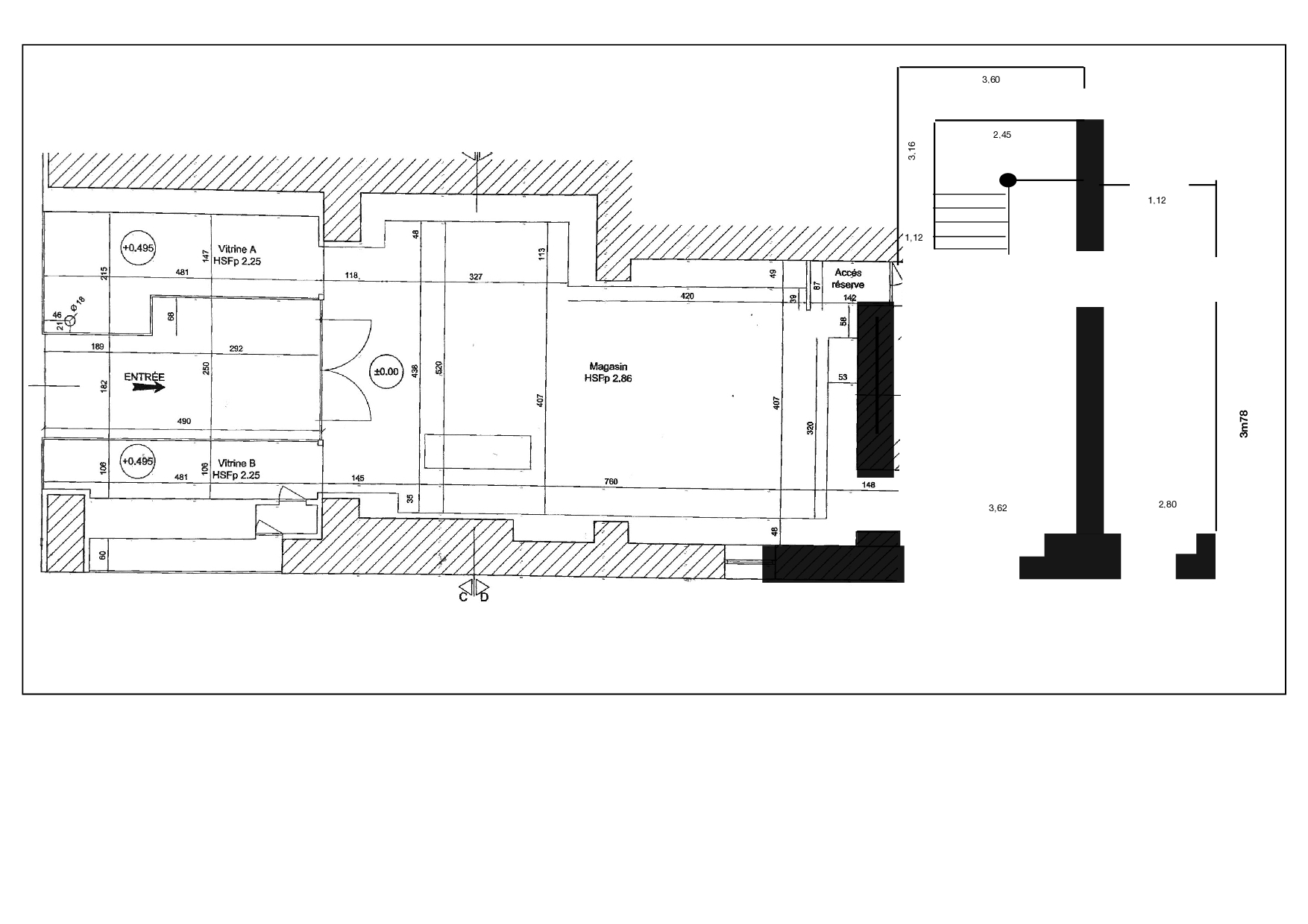
Vendita di un'attività idealmente situata nel cuore della via dello shopping di Monte-Carlo, sul prestigioso Boulevard des Moulins. Questo spazio raffinato si distingue per l'attraente vetrina e la posizione strategica.

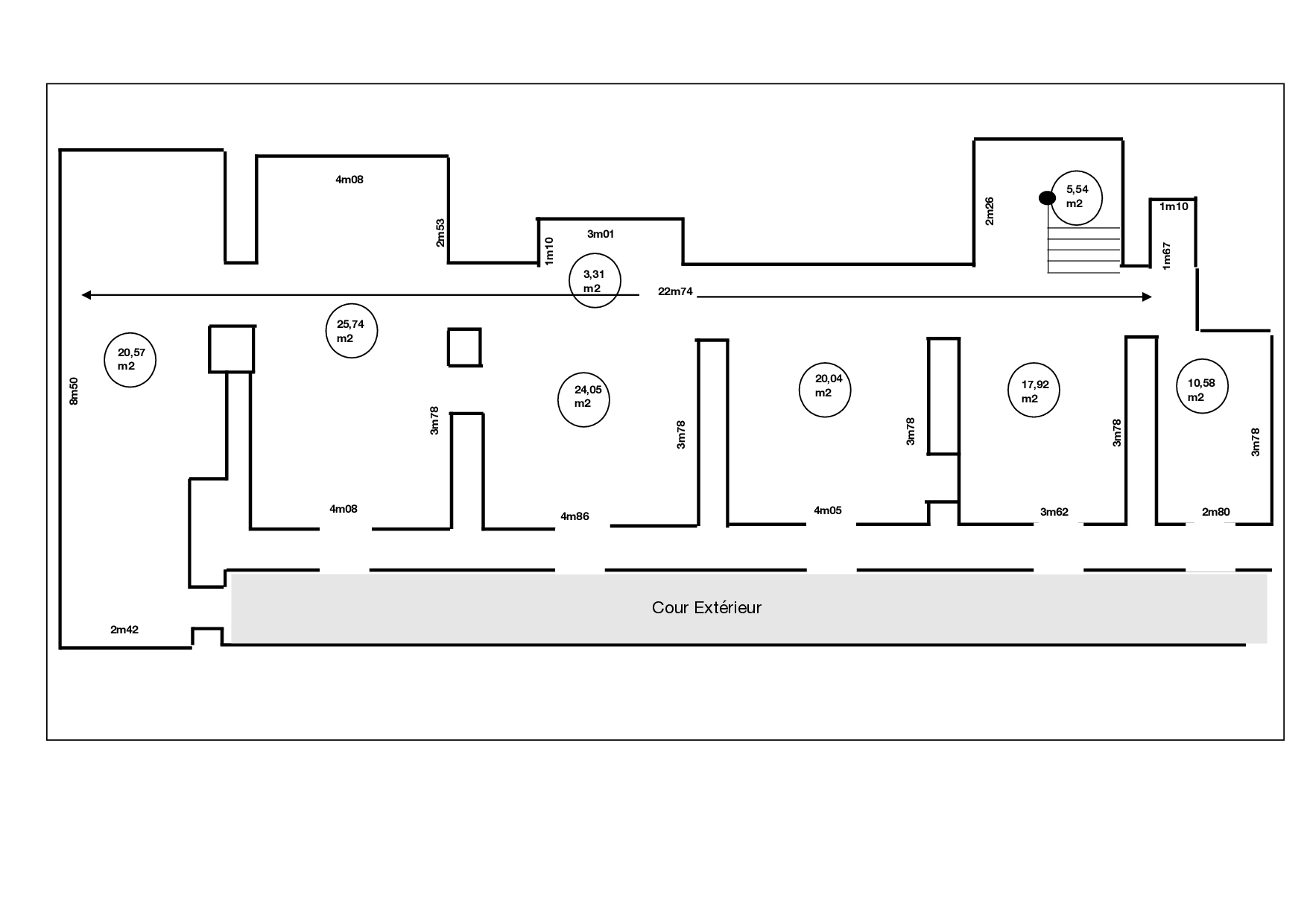
Lo spazio si sviluppa su due livelli:

  • Piano terra : 150 m², con un'elegante vetrina.
  • Seminterrato : 180 m² accuratamente convertiti in magazzini e uffici.

 


Posizione del prodotto

Contatto

* campo obbligatorio

Tornare alla lista

FR EN IT