Immobiliare a MonteCarlo

Uffici in vendita a MonteCarlo

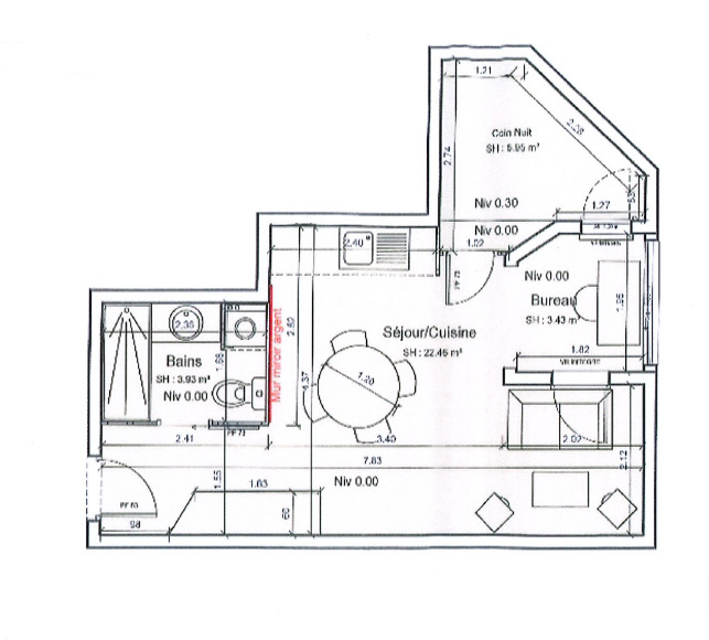
PARC SAINT ROMAN / GRANDE MONOLOCALE / CANTINA

Tornare alla lista

La residenza Parc Saint Roman si trova in un edificio di lusso vicino al Monte-Carlo Country Club e al Beach Club. Offre un servizio di portineria permanente e sicuro 24 ore su 24, una piscina, una pool house, un piccolo bar a bordo piscina, una sala fitness, una sauna e un parco paesaggistico.

1 750 000 €
No. camere : monolocale
Tipo di proprietà : Appartamento
Città : Monaco
Superficie abitabile : 47 m²
Superficie totale : 47 m²
Data di liberazione : Immédiatement
Arredato : 1
Parcheggi : 1

SPAZIOSO MONOLOCALE con splendida vista sul mare 

CANTINA  

PARCHEGGIO oltre al prezzo 

 

 


Posizione del prodotto

Contatto

* campo obbligatorio

Tornare alla lista

FR EN IT