Immobiliare a MonteCarlo

Affitti di uffici

FONTVIEILLE - Mercator - Uffici amministrativi

Tornare alla lista

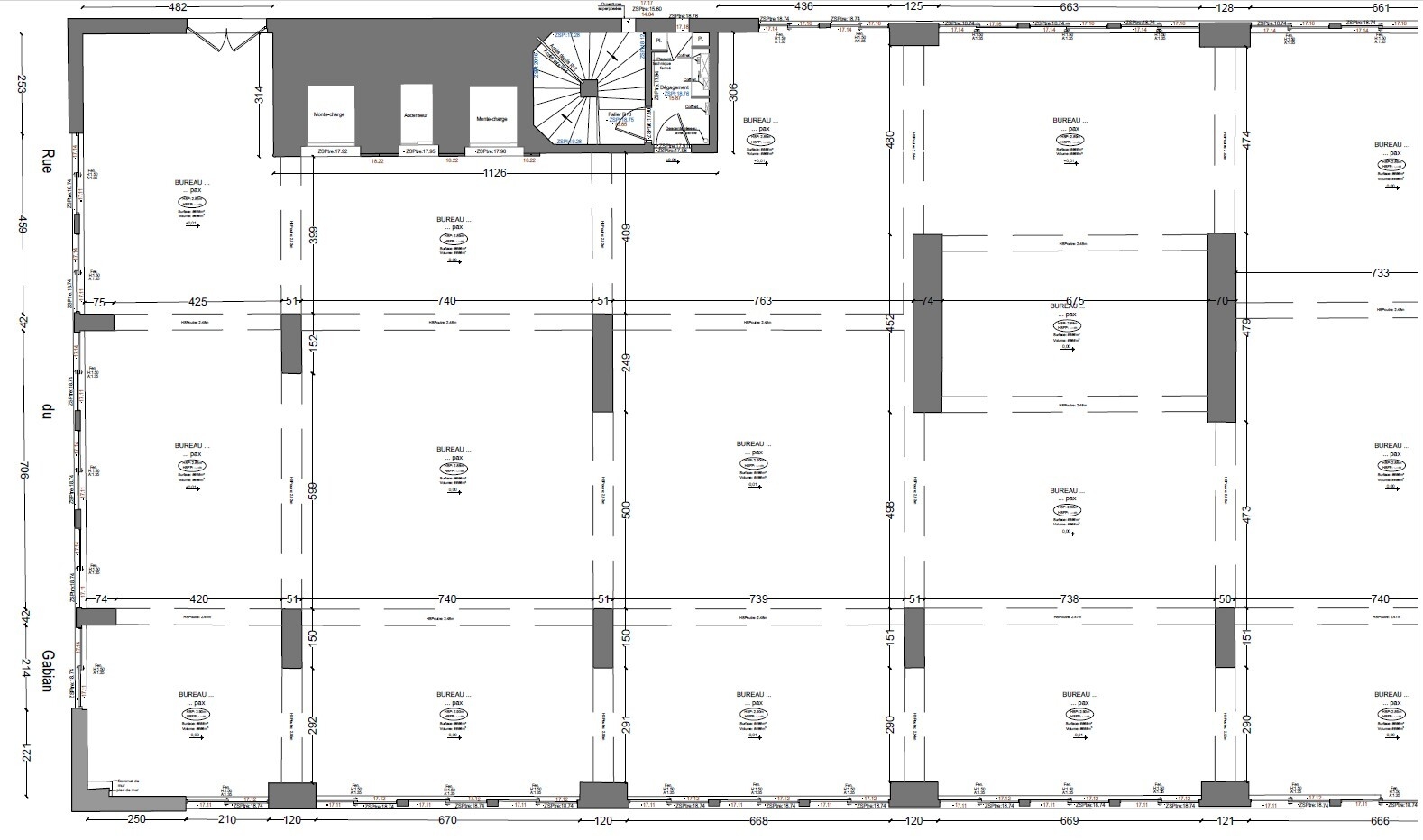
Uffici di 856 mq con area di stoccaggio al piano interrato, situati in un moderno edificio di Fontvieille. Accesso ottimizzato con ascensore e due montacarichi, sei posti auto inclusi. Un indirizzo strategico per aziende che vogliono affermarsi in un polo economico in crescita.

45 000 € (+service charges : 2 200 €)
No. camere :
Tipo di proprietà : Ufficio
Città : Monaco
Superficie abitabile : 856 m²
Superficie totale : 856 m²
Data di liberazione : Immédiatement

Situati nel cuore di Fontvieille, un quartiere dinamico e strategico, questi uffici occupano l’intero 3° piano di un moderno edificio di 12 piani.

Con una superficie operativa di 800 mq, dispongono inoltre di un’area di stoccaggio/archivio al piano interrato, garantendo un’organizzazione efficiente.

L’accessibilità è assicurata da un ascensore e due montacarichi, che permettono un collegamento diretto ai livelli inferiori. Sei posti auto all’interno dell’edificio completano l’offerta.

Disponibilità: Da concordare
Affito: 45 000 € + IVA + spese


Posizione del prodotto

Contatto

* campo obbligatorio

Tornare alla lista

FR EN IT