Immobiliare a MonteCarlo

Affitti di uffici

BOULEVARD DES MOULINS - 4 locali - Completamente ristrutturato

Tornare alla lista

Il "Palais Albany", è un immobile borghese situato nel cuore di Monte-Carlo, sulla rinomata Boulevard Des Moulins. Residenza elegante con servizio di portineria, sicura e perfettamente tenuta

26 000 € (+service charges : 1 000 €)
No. camere : 4 stanze
Tipo di proprietà : Appartamento
Città : Monaco
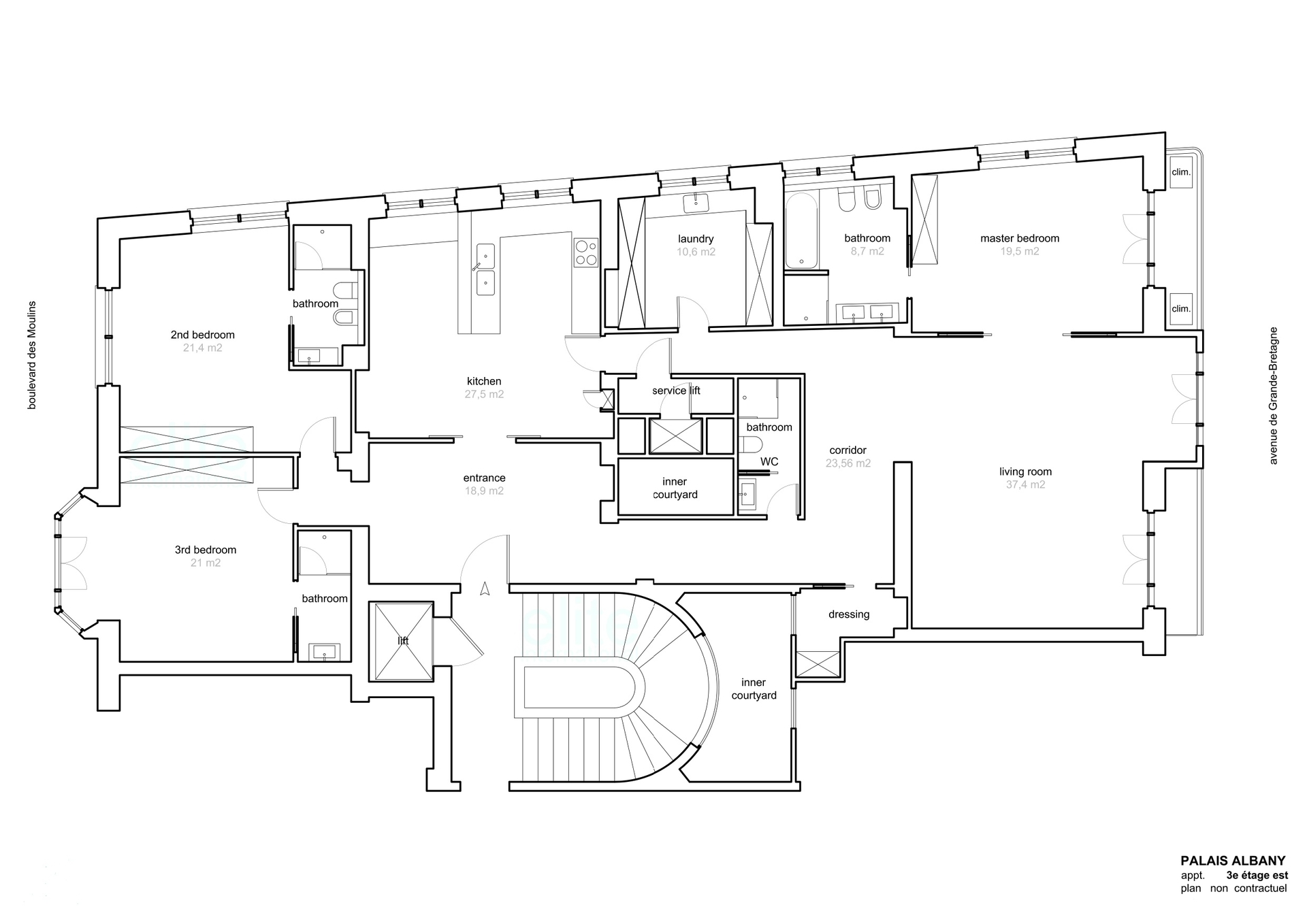
Superficie totale : 257 m²
Livello : 3
Data di liberazione : 01/06/2026
Leggi : Loi 887
Parcheggi : 1

Appartamento familiale molto luminoso, completamente ristrutturato, con ampi spazi e finiture di alto livello. L'appartamento è sotto i sensi della LEGGE 887. E' composto da:

  • Ingresso - Entrata di servizio
  • Doppio soggiorno/sala da pranzo aperto sulla terrazza con vista mare
  • Cucina  completamente attrezzata 
  • 3 camere da letto, ognuna con il proprio bagno privato
  • Locale lavanderia
  • Bagno per gli ospiti con doccia

Un PARCHEGGIO, una CANTINA ed una CAMERA DI SERVIZIO luminosa ed indipendente situati nell'immobile completano questa proprietà.

 


Posizione del prodotto

Contatto

* campo obbligatorio

Tornare alla lista

FR EN IT