Immobiliare a MonteCarlo

Uffici in vendita a MonteCarlo

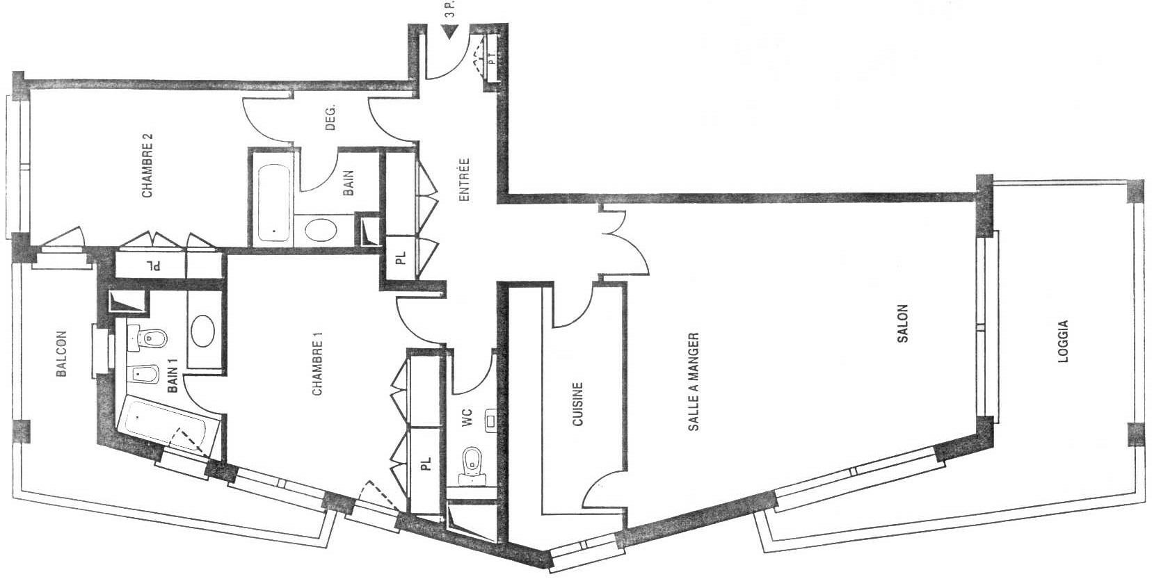
3 room apartment - Villa Bianca

Tornare alla lista

Apartment of a nice surface area, with a double parking, in the center of Monte Carlo, close to the Carré d'or.

6 500 000 €
No. camere : 3 stanze
Tipo di proprietà : Appartamento
Città : Monaco
Superficie abitabile : 110 m²
Superficie totale : 140 m²
Superficie terrazzi : 30 m²
Livello : 2ème étage
Parcheggi : 2

This apartment includes an entrance hall, a living-dining room, a completely renovated independent fitted kitchen, a separate toilet, a bedroom with a bathroom and another with a shower room, 2 loggias, a double underground car park and a cellar.

Possibility of offices

The apartment is currently rented for €7,210.00/month + utilities until February 28, 2026.


Posizione del prodotto

Contatto

* campo obbligatorio

Tornare alla lista

FR EN IT