Immobiliare a MonteCarlo

Uffici in vendita a MonteCarlo

Esclusività - GRAND IDA - 3P in vendita

Tornare alla lista

Situato in una zona tranquilla e residenziale del Principato di Monaco, il complesso immobiliare "GRAND IDA" è un progetto moderno composto da tre edifici. I blocchi B e C sono già stati consegnati e sono per lo più occupati da residenti monegaschi (alloggi statali), mentre l'edificio A, che ospiterà l'appartamento proposto, sarà consegnato alla fine di marzo 2026.

La residenza offre un ambiente di vita tranquillo, con accesso diretto a molti negozi, in particolare quelli situati nella parte inferiore dell'edificio, nonché un ottimo collegamento con i settori Condamine e Fontvieille tramite ascensori pubblici e ringhiere per scale. Situato in un tratto pedonale del Boulevard Rainier III, GRAND IDA garantisce ai suoi residenti comfort e tranquillità.

7 300 000 €
No. camere : 3 stanze
Tipo di proprietà : Appartamento
Città : Monaco
Superficie abitabile : 99.62 m²
Superficie totale : 142.71 m²
Livello : 12
Data di liberazione : 1/3/2026
Parcheggi : 1

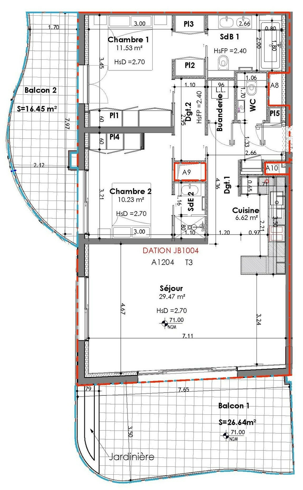
Questo appartamento di 3 locali in vendita, situato al 12 ° piano dell'edificio A, è composto da un soggiorno/sala da pranzo che si apre su un balcone (esposto a sud), una cucina completamente attrezzata, due camere da letto che si aprono su un balcone (esposto a sud-ovest), un bagno, un bagno con doccia, una lavanderia, una toilette separata e un sacco di spazio incorporato.

Completano la proprietà un posto auto situato al 3° piano interrato e una cantina al 3° piano interrato.


Posizione del prodotto

Contatto

* campo obbligatorio

Tornare alla lista

FR EN IT