Immobiliare a MonteCarlo

Uffici in vendita a MonteCarlo

JARDIN EXOTIQUE – LOCALE TRASFORMABILE IN APPARTAMENTO - VILLA EDELWEISS

Tornare alla lista

PALAZZO BORGHESE Raro locale quartiere Giardino Esotico – Ideale per uffici o appartamento trilocale

3 250 000 €
No. camere : 3 stanze
Tipo di proprietà : Appartamento
Città : Monaco
Superficie abitabile : 87.1 m²
Superficie totale : 87.1 m²
Livello : RDC
Data di liberazione : Libre

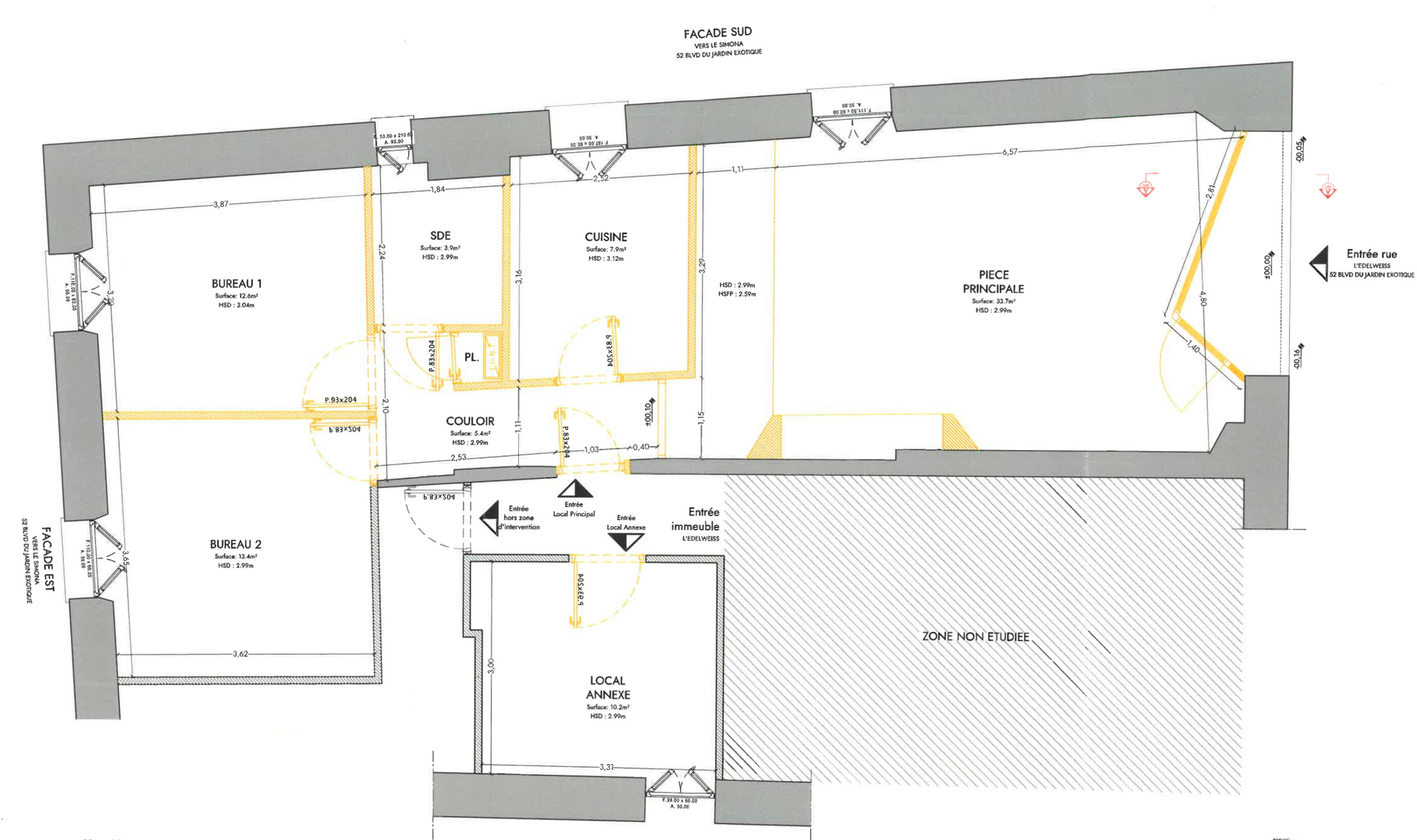
Convertibile locale in un appartamento a 3 stanze 

Situata nella popolare zona del Jardin Exotique, apprezzata per la sua tranquillità, questa proprietà beneficia di un ambiente tranquillo pur rimanendo vicina ai servizi e all'accesso a Fontvieille e La Condamine.

Attualmente destinato a essere un locale commerciale, è composto da un doppio ingresso, uno spazio aperto, una cucina separata, un bagno e due camere da letto che possono essere utilizzati come uffici. Una grande cantina completa questa proprietà.

Ideale per un'azienda o per un appartamento di 3 stanze, il progetto di trasformazione è già stato convalidato dal DPUM e il permesso edilizio concesso. Un progetto di facciata residenziale è stato inoltre realizzato e convalidato dall'urbanistica e dall'amministratore del condominio.

Pertanto, solo lavori di ristrutturazione e sviluppo saranno necessari all'acquirente, offrendo un grande potenziale per creare uno spazio unico a tua immagine in un'area privilegiata.


Posizione del prodotto

Contatto

* campo obbligatorio

Tornare alla lista

FR EN IT