TRILOCALE AL BEL HORIZON
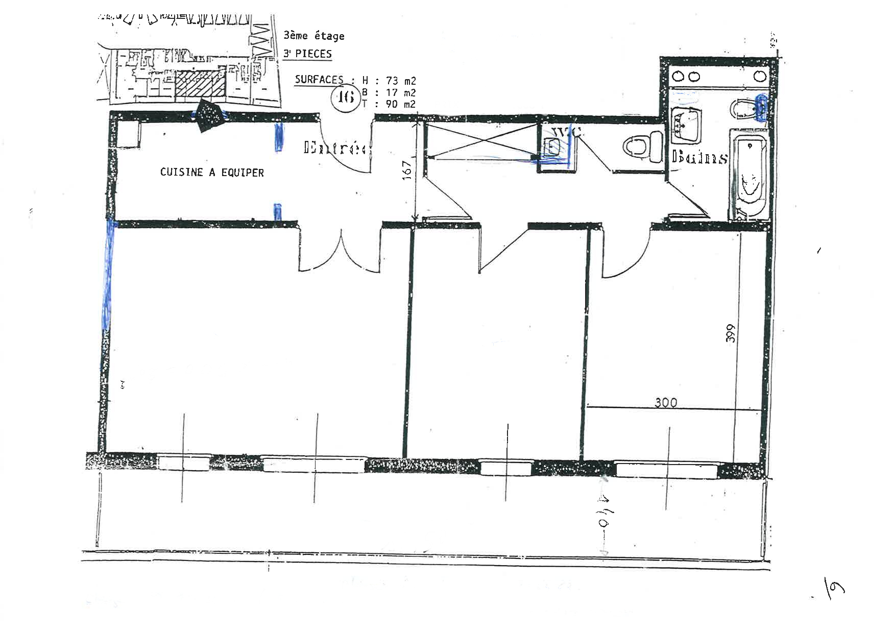
Appartamento luminoso che offre un ambiente abitativo funzionale. Si compone di un soggiorno con buona luminosità, una cucina separata e due camere da letto.
L’appartamento si sviluppa in lunghezza lungo la terrazza, con i principali ambienti che si affacciano sull’esterno, creando una piacevole continuità tra spazi interni ed esterni.
L’immobile comprende inoltre un bagno, WC separati e un sistema di aria condizionata.
All’esterno, una terrazza offre uno spazio aggiuntivo.
Un posto auto completa la proprietà.
L'appartamento è composto da un ingresso con disimpegno, cucina attrezzata separata, ampio soggiorno, due camere da letto, bagno, WC separato e parcheggio sullo stesso piano.
Appartamento completamente climatizzato.
Riscaldamento e acqua inclusi nelle spese condominiali